町営若者住宅(小丹波第1)
町営若者住宅(小丹波第1)は、JR青梅線古里駅からのアクセスも良く、保育園や小学校も徒歩数分です。
コンビニ(セブンイレブン)やJA西東京、郵便局も近く子ども家庭支援センターも徒歩で行けます。
住宅の概要
概要
- 住宅名 町営若者住宅 小丹波第1
- 所在地 東京都西多摩郡奥多摩町小丹波627番地9
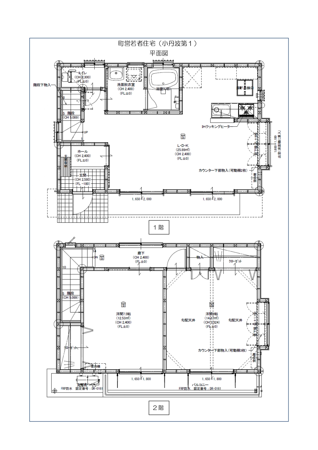
- 構造 木造2階建 (床面積:74.4平方メートル)
- 間取り メゾネットタイプ2LDK
- 使用料 30,000円/月
- 駐車場 3,000円/月
- 共益費 500円/月
間取り

外観写真

住宅内写真
1階リビング
キッチン
洗面所、お風呂
2階洋室 その1
2階洋室 その2
この記事に関するお問い合わせ先
子育て定住推進課 若者定住推進係
奥多摩町氷川215-6
電話番号:0428-83-2310
ファクス:0428-83-2344
お問い合わせはこちら




更新日:2026年02月05日