町営若者住宅(栃久保除ヶ野)
町営若者住宅(栃久保除ヶ野)は、JR青梅線奥多摩駅から徒歩約10分です。
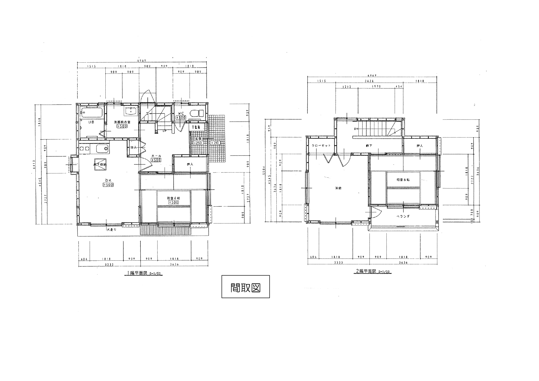
日当たりも良く、3LDKで戸建てタイプはこの住宅のみとなります。
保育園まで車で約5分、小学校まで徒歩で約10分です。
住宅の概要
概要
- 住宅名 町営若者住宅 栃久保除ヶ野
- 所在地 東京都西多摩郡奥多摩町氷川459番地
- 構造 木造2階建 (床面積:76.5平方メートル)
- 間取り 3LDK
- 使用料 33,000円/月
- 駐車場 3,000円/月
- 共益費 なし
間取り

外観写真

住宅内写真
玄関
1階和室
キッチン
2階洋室
2階和室
この記事に関するお問い合わせ先
子育て定住推進課 若者定住推進係
奥多摩町氷川215-6
電話番号:0428-83-2310
ファクス:0428-83-2344
お問い合わせはこちら




更新日:2026年02月05日