町営若者住宅(海沢第1)
町営若者住宅(海沢第1)は、JR青梅線奥多摩駅から車で約5分です。
大きい通りに面しているので、ちょっとしたお買い物やお出かけに行きやすいです。
保育園、小学校まで車で約5分です。
住宅の概要
概要
- 住宅名 町営若者住宅 海沢第1
- 所在地 東京都西多摩郡奥多摩町海沢805番地
- 構造 木造2階建 (床面積:66.5平方メートル)
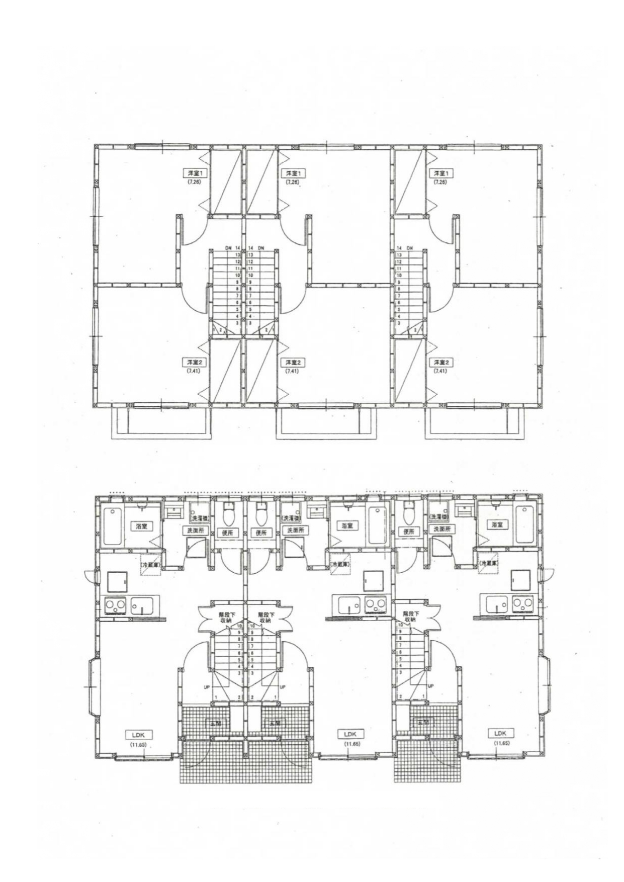
- 間取り 2LDK
- 使用料 20,000円/月
- 駐車場 3,000円/月
- 共益費 500円/月
間取り

外観写真

住宅内写真
キッチン
1階リビング
2階洋室 その1
2階洋室 その2
この記事に関するお問い合わせ先
子育て定住推進課 若者定住推進係
奥多摩町氷川215-6
電話番号:0428-83-2310
ファクス:0428-83-2344
お問い合わせはこちら




更新日:2026年02月05日