町営若者住宅(小丹波第4)
町営若者住宅(小丹波第4)は、JR青梅駅古里駅から徒歩で約5分です。
5.小丹波第1のすぐ横にある戸建てタイプの住宅です。
保育園、小学校まで徒歩で約5分です。
住宅の概要
概要
- 住宅名 町営若者住宅 小丹波第4
- 所在地 東京都西多摩郡奥多摩町小丹波468番地
- 構造 木造2階建 (床面積:57.8平方メートル)
- 間取り 2LDK
- 使用料 33,000円/月
- 駐車場 3,000円/月
- 共益費 500円/月
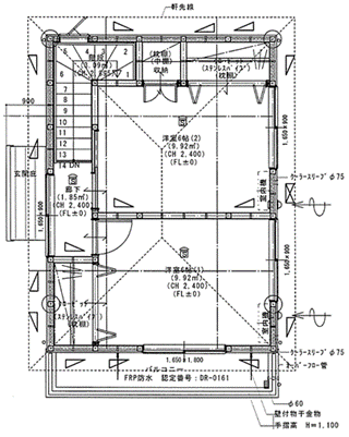
間取り
1階
2階
外観写真
住宅内写真
玄関
1階リビング、キッチン
2階洋室 その1
2階洋室 その2
この記事に関するお問い合わせ先
子育て定住推進課 若者定住推進係
奥多摩町氷川215-6
電話番号:0428-83-2310
ファクス:0428-83-2344
お問い合わせはこちら




更新日:2026年02月05日